Description
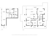
Nestled in the highly sought-after Maui Meadows neighborhood, this unique pole home on Kupulau Drive offers breathtaking views as you approach the covered lanai and front entry. The open-concept living area, featuring lots of windows, redwood walls and high ceilings, offers plenty of flexibility and captures stunning ocean and mountain vistas. The wrap-around covered deck enhances the home's connection to the outdoors. The kitchen has ample work space and opens to the dining area that includes a built-in china cabinet. An additional room provides the perfect space for an office or study.The primary bedroom, located on one side of the home, opens directly to the deck, providing both privacy and views. On the opposite side, the second and third bedrooms share a very nice bath. The lower level offers extended living space with patio and yard access, as well as a small kitchen, two bedrooms, and a bath. The garage has an adjoining workshop area. In the backyard, a gazebo offers a cozy retreat looking over the yard & enjoying views too. While the property does require updating, it features a spacious, open layout with versatile interior spaces. The structure is supported by poles, providing a great opportunity for creative customization. Set on a generous lot, there's plenty of room for two detached cottages, making this a perfect opportunity for those with vision to transform this tropical retreat into your dream property!
-
3BEDS
-
0.66ACRES
-
2BATHS
-
01/2 BATHS
-
2,111SQFT
-
$1,042$/SQFT
School Ratings & Info
Description
Nestled in the highly sought-after Maui Meadows neighborhood, this unique pole home on Kupulau Drive offers breathtaking views as you approach the covered lanai and front entry. The open-concept living area, featuring lots of windows, redwood walls and high ceilings, offers plenty of flexibility and captures stunning ocean and mountain vistas. The wrap-around covered deck enhances the home's connection to the outdoors. The kitchen has ample work space and opens to the dining area that includes a built-in china cabinet. An additional room provides the perfect space for an office or study.The primary bedroom, located on one side of the home, opens directly to the deck, providing both privacy and views. On the opposite side, the second and third bedrooms share a very nice bath. The lower level offers extended living space with patio and yard access, as well as a small kitchen, two bedrooms, and a bath. The garage has an adjoining workshop area. In the backyard, a gazebo offers a cozy retreat looking over the yard & enjoying views too. While the property does require updating, it features a spacious, open layout with versatile interior spaces. The structure is supported by poles, providing a great opportunity for creative customization. Set on a generous lot, there's plenty of room for two detached cottages, making this a perfect opportunity for those with vision to transform this tropical retreat into your dream property!
